Recent Changes - Search:

Surveys and data


Instruments


Support to other department sections


Support Dr. Scient. thesis


Contribution to "Scientific infrastructure"


Obsolete, kept for reference


edit SideBar

Last update: December 13, 2025, at 11:35 AM
Version: pmwiki-2.3.38


    RV "G.O. SARS"     

   GEOFYSISK INSTRUMENTERING / KABLING / KONNEKTORER

UNIVERSITETET I BERGEN
Institutt for geovitenskap
 Allé gt. 41, 5007 Bergen, Norge 
             
0.2 Oppdatering 2025 - 30. april 2025 OM OM -
0.1 UTKAST - for kommentarer - 25. aug. 2003 OM OM -
VER. STATUS ENDRING DATO AV KONTROLL GODKJENT

RV "G.O. SARS" during building at "Flekkefjord Slipp og Maskinfabrikk", February 2003.

INNHOLDSFORTEGNELSE

"G.O. SARS": BAKGRUNNSINFORMASJON


TEGNINGER, KABLING FOR GEOFYSISK INSTRUMENTERING


Nr. Tegning Beskrivelse Last ned Dato Ver
1 Klikk for større versjon.

Klikk for større bilde.

Rack layout, 5th deck, seismic ops room Racks-seismics-ops-room.vsd
(VISIO format)

PDF
26. mars 2003 1.0
2 Klikk for større versjon.

Klikk for større bilde.

Terminals in racks, 5th deck, seismic ops room terminal-blocks-seismics-ops-room-ver-1.vsd
(VISIO format)

PDF
26. mars 2003 1.0
3 Klikk for større versjon.

Klikk for større bilde.

Main diagram cables-seismic-01-1A.vsd
(VISIO format)

PDF
26. nov. 2002 1.0
4 Klikk for større versjon.

Klikk for større bilde.

Cable tag list cables-seismic-list-01-1A.xls
(EXCEL format)

PDF
26. nov. 2002 1.0
5 Klikk for større versjon.

Klikk for større versjon (PDF).

List of interconnections cables-seismic-list-02-rev-1.xls
(EXCEL format)

PDF
25. aug. 2003 1.0
6 Klikk for større versjon.

Klikk for større versjon (PDF).

Junction Box JB-S-06

3rd deck, lab. 16
jb-s-06-rev1.vsd
(VISIO format)

PDF
27. feb. 2003 1.0
7 Klikk for større versjon.

Klikk for større bilde.

Terminal blocks in racks, seismic ops room 5th deck jb-s-05-rev2.vsd
(VISIO format)

PDF

Change history:
Rev. 2:

  • Mirrored all terminal groups. Cable entries will then match those on drawing "jb-s-06-revX".
  • Text describing all terminal groups.
25. aug. 2003 2.0
8 Klikk for større versjon.

Klikk for større bilde.

Junction Box JB-S-04

4th deck, trawl gantry, starboard side
jb-s-04-rev1.vsd
(VISIO format)

PDF
28. feb. 2003 1.0
9 Klikk for større versjon.

Klikk for større bilde.

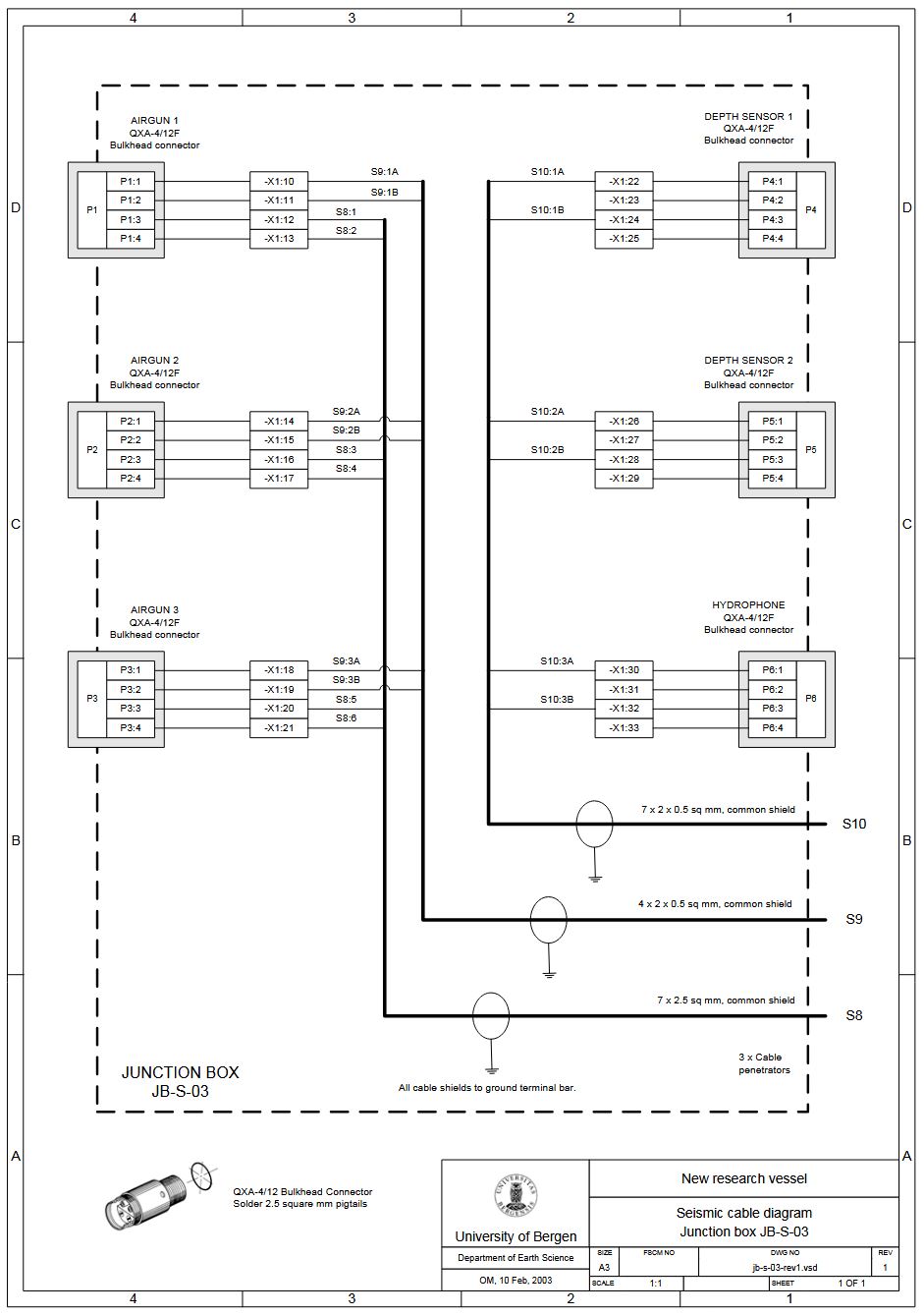
Junction Box JB-S-03

3rd deck, approx. frame 5, port side
jb-s-03-rev1.vsd
(VISIO format)

PDF
10. feb. 2003 1.0
10 Klikk for større versjon.

Klikk for større bilde.

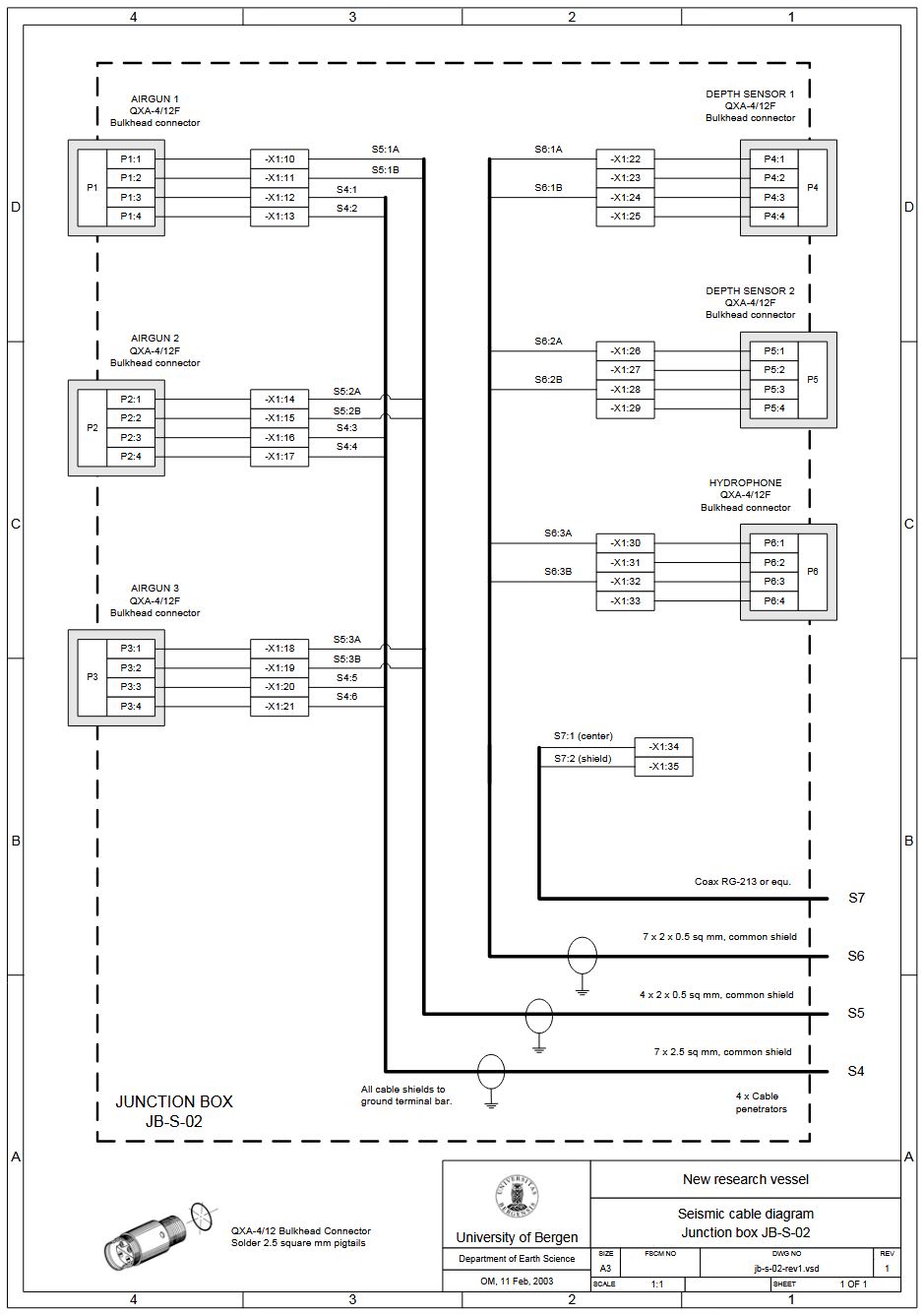
Junction Box JB-S-02

3rd deck, approx. frame 5, starboard side
jb-s-02-rev1.vsd
(VISIO format)

PDF
11. feb. 2003 1.0
11 Klikk for større versjon.

Klikk for større bilde.

Junction Box JB-S-01

2nd deck, approx. frame 5, close to Gun winch
jb-s-01-rev1.vsd
(VISIO format)

PDF
21. feb. 2003 1.0

KONNEKTORER


For Mag. vinsj koplingsboks på 4.dekk


Kabelkonnektor


Sealed plug mating seal -- Male contacts -- 18 contacts, #16 -- CL1P3101

2025 dokumentasjon:
  • Manufacturer: Eaton - Souriau
  • Shell size: 3
  • 18 contacts, #16 (Ø1.6mm)
  • Mfr. part number:
    • Sealed plug mating seal: CL1P3101
    • Anti-decoupling sealing gland backshell - Sealed -- Shell size 3 (PG21): CL103021
  • Souriau CLIPPER series data sheets (PDF) --- Også lokal kopi
  • Supplier: Farnell
    • CL1P3101 -- Circular Connector, Souriau Clipper Series, Cable Mount Plug, 18 Contacts -- Art.nr.: 1902692

Fra Souriau CLIPPER series data sheets (PDF)

Layouts face male contact

Bulkhead-konnektor i Junction Box


Klikk for større versjon.

18-pin bulkhead, socket contacts -- Junction box 4. Klikk for større versjon.

Drilling of holes in bulkhead (Shell size = 3):

  • H = 31 mm
  • J = 28.6 mm
  • G = 2.8 mm
2025 dokumentasjon:
  • Manufacturer: Eaton - Souriau
  • Shell size: 3
  • 18 contacts, #16
  • Mfr. part number: CL1R3102
    • "Sealed receptacle with panel gasket" - for 18 contacts, female contacts
  • Souriau CLIPPER series data sheets (PDF) --- Også lokal kopi
  • Supplier: Farnell

2003 dokumentasjon:

  • Manufacturer: FCI
  • Mfr. part number: CL1R3101UK/FC FAB KIT 4172607
  • 18-pin bulkhead connector, sockets
  • Clipper Industrial Plastic Connectors (PDF, 28 pages)
  • Supplier: Farnell
    • Supplier part. no.: 749151
    • Supplier designation: RECEPTACLE SQ.SKTS 18WAY FAB KIT 4172607
Edit - History - Print - Search
Page last modified on May 01, 2025, at 08:10 AM
Electronics workshop
Department of Earth Science - University of Bergen
N O R W A Y